Завод СИП-домов:
СИП-панели и комплектующие

Готовые проекты домовПроектированиеСИП-панелиПиломатериалыСтроительствоДомокомплектыАкцииКредитСертификатыПортфолиоВопрос / ОтветБлогO насОплата и доставкаВопрос-ответМатеринский капиталВидеоПолитика конфиденциальностиКонтактыКарта сайта

КП Кривцы

КП Кривцы
Кривцы,
Раменский район
КП Кривцы
ОСП-3 145 м2
Итоговая стоимость:
4800000 руб.
Дата постройки:
6.09.2025

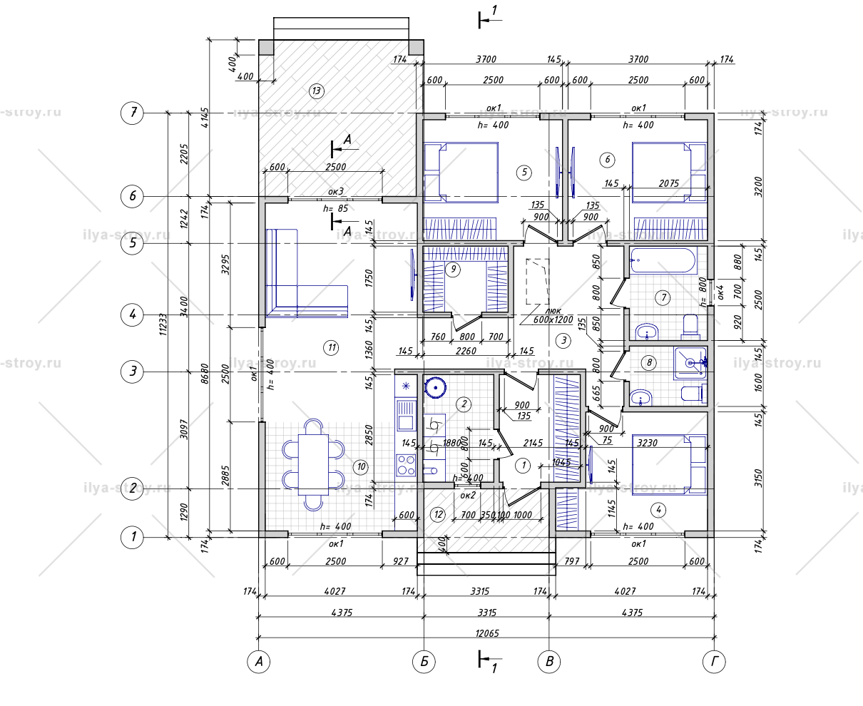
Описание комплектации

Фундамент

Винтовые сваи 108x300x2500 мм, обработанные антикоррозийным покрытием марки . Толщина стенки 4 мм, лопасти 5 мм. Усиление полости сваи смесью бетона марки М300. Оголовок 250х250 мм. Механический монтаж.

Материал СИП-панелей

СИП-панели из влагостойких листов ОСП-3 Free Formaldehyde Калевала. Повышенный класс экологичности - Е0,5: минимальное содержание формальдегида за счет склейки древесной стружки в плите синтетическими смолами). Утеплитель - фасадный пенополистирол, самозатухающий за счет содержания антипиренов, блокирующих самостоятельное горение материала.

Цокольное перекрытие

СИП-панель толщиной 224 мм в шахматном порядке с лагами из антисептированного бруса камерной сушки толщиной 200 мм с шагом 625 мм.

Стены внешние

СИП панель толщиной 174 мм с несущим каркасом из антисептированного сухого бруса толщиной 150 мм.

Перегородки

СИП панель толщиной 174 мм с несущим каркасом из антисептированного сухого бруса толщиной 150 мм.

Межэтажное перекрытие

отсутствует по проекту

Чердачное перекрытие

СИП-панель толщиной 224 мм в шахматном порядке с лагами из антисептированного бруса камерной сушки толщиной 200 мм с шагом 625 мм.

Крыша

Стропильная система из сухой строганой доски 50х150 (200) мм с обрешеткой 25х100 и контробрешеткой 45х45 мм.

Кровля

Металлочерепица T05 PE-полиэстер (Zn 140 г/кв.м). Толщина металла 0,5 мм, покрытие 25 мкм, глянцевый, цвет на выбор.

Окна

Окна и двери ПВХ профиль REHAU Grazio 70 мм, с энергосберегающим двухкамерным стеклопакетом, профиль с ламинацией, фурнитура ROTO NT с микропроветриванием.

Фотоотчет

Консультация со специалистом:

Консультант
0 Список товаров в корзине

Ваша корзина пуста

Сумма заказа: руб.

Оформить заказ
Calculator